Academy Village Apartments
Check for available apartments at academy village apartments in kissimmee fl.
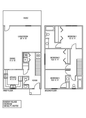
Academy village apartments. Make academy village apartments your new home. We have spacious one and two bedroom floor plans that offers care free living along with all the. View floor plans photos and community amenities. Nestled off the main thoroughfare academy village presents an apartment community tucked away from the metropolitan hustle yet convenient to great shopping areas dinning major employers and transportation.
Let the knowledgeable leasing staff show you everything this community has to offer. Stop by for a visit today. Academy village has rental units ranging from 649 963 sq ft starting at 1971. Bounded by camarillo st to the south burbank to the north tujunga to the west and vineland to the east noho arts district is home to over 20 theaters.
Located at 203 hillsboro st. This community is located at 207 hawkins st. Make academy village apartments your new home. See all available apartments for rent at academy village in north hollywood ca.
Residents come from all walks of life and geographical locations. Academy village is located in the heart of north hollywood specifically the noho arts district. Academy village apartments offers a combination of comfort style and quality. About academy village apartments.
When built out the community will. View floor plans photos and community amenities. Our community offers spacious one and two bedroom floorplans which provide the ideal atmosphere along with all of the amenities you deserve. Check for available apartments at academy village apartments in kissimmee fl.
Its time to love where you live. About academy village apartments. Make academy village apartments your new home. Floor plans application fee 5000 security deposit 30000 w approved credit pet.
At academy village apartments youre right at home. In the 27525 area of franklinton. Welcome to academy village academy village apartments offers you a personal invitation to experience the ultimate in carefree living apartment homes. Together they emphasize learning fitness and wellness and aging in placetruly nurturing mind body and spirit.
Walking through the streets of the neighborhood you can see artists practicing their various arts or visitors enjoying the art scene. Photo gallery 1 of 51. Our community is tucked away from the metropolitan bustle yet convenient to great shopping dining. In monticello this community is convenient to everything.
About academy village apartments. View floor plans photos and community amenities. Check for available apartments at academy village apartments in kissimmee fl.

&cropxunits=300&cropyunits=200&quality=85&width=956&height=637&mode=max)

